Base Cynophile

PROJECT:

PROGRAMME:

LOCALISATION:

CLIENT:

ANNEE:

STATUS:

EQUIPE MOE:

Base Cynophile

300m2 - 750.000,00 € HT

Muret - France

DISP Toulouse - Ministère de la Justice

2012

Livré en 2013 - PRIX MIDI PYRENEES 2014

Architecte SYNOPSYS, BE ELEC - CVC ITUD, Economie et OPC - SYNOPSYS

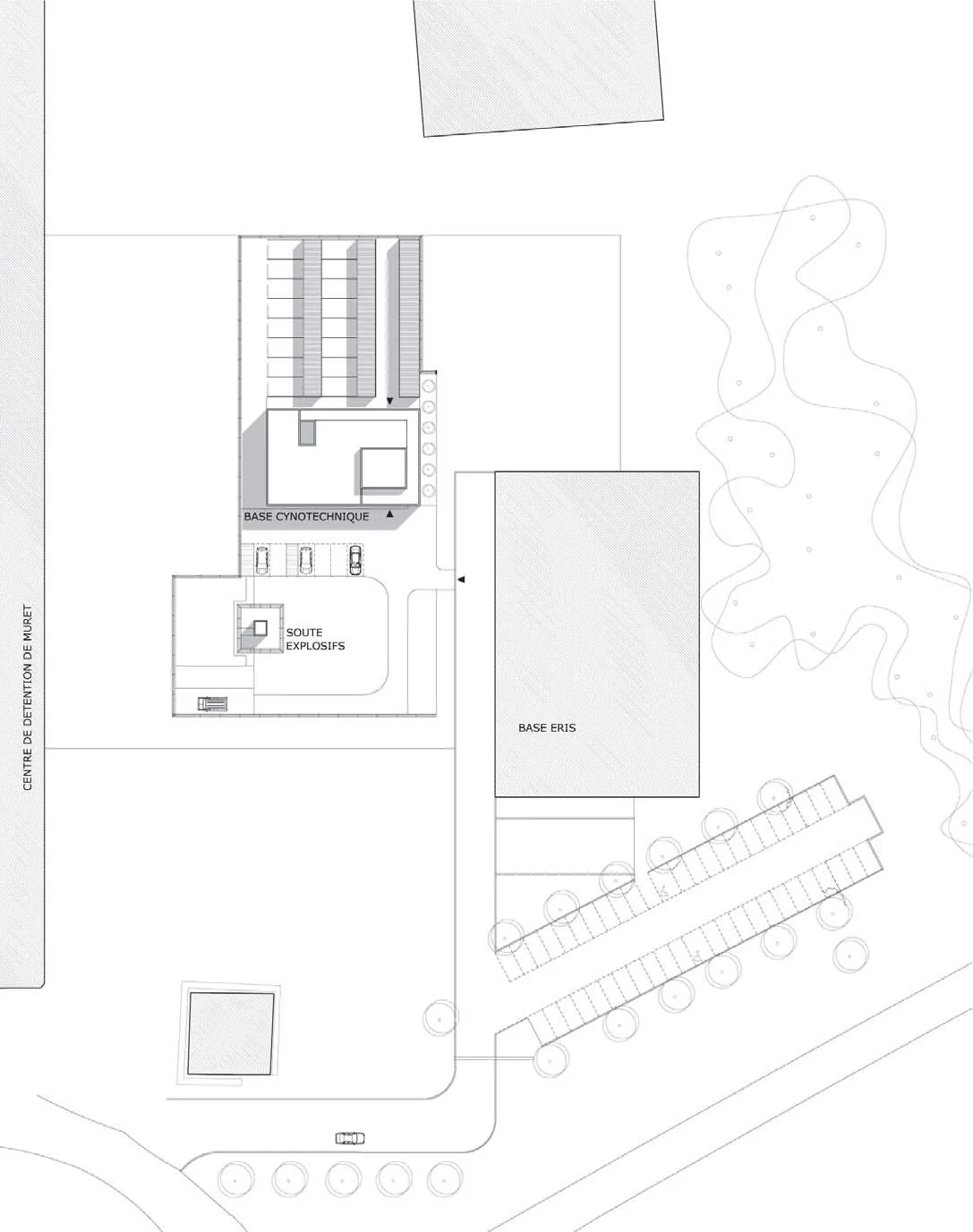
Le projet de la base cynotechnique est situé entre le centre de détention de Muret et la base ERIS. Le programme se compose de quatre entités distinctes : les installations du personnel et les espaces communs, l'infirmerie et la cuisine des chiens, les laboratoires d'armes et de drogues, et l'administration. Ces entités doivent être en mesure de fonctionner de manière indépendante tout en étant respectivement reliées les unes aux autres. Huit box et terrains d'entraînement existent derrière le bâtiment, et ils doivent être connectés aux autres entités.

AXONOMETRIE ECLATEE

Comment satisfaire un programme complexe, exigeant une totale autonomie de tous les espaces? Comment connecter les travaux extérieurs se déroulant dans un environnement rude avec les activités intérieures se déroulant dans une atmosphère « propre », sans générer d'importants problèmes quotidiens et coûteux de maintenance du bâtiment?

Sur la base d'études de flux de circulation, nous avons décidé de concevoir deux circulations : la première, intérieure, permettant à l'équipe administrative d'accéder au laboratoire et aux installations pour chiens, et la seconde, reliant la première des deux extrémités, permettant la connexion entre les mêmes services et la zone extérieure. Les utilités mutuelles disposent de deux accès permettant à chaque équipe d'exécuter sa mission sans empiéter sur celle de l'autre ou sur son espace.

PLAN DE MASSE

PLAN RDC

FACADE SUD

FACADE NORD

Une enceinte en béton et métal enveloppe la circulation extérieure la transformant en une galerie qui mène à un patio au cœur du bâtiment. Le patio s'ouvre à la lumière et au paysage extérieur à travers des filtres en mailles métalliques. Dans un souci de réduire les coûts de construction et de maintenance, seuls trois matériaux ont été utilisés dans ce projet : le béton (en prémur isolé pour les façades et coulé sur place pour les étages hauts et bas), l'acier galvanisé (pour l'assemblage des serrureries et le revêtement), et de l’osier naturel (pour le revêtement et l'ombrage des arrière-cours). L'optimisation des matériaux, l'adoption d'une géométrie élémentaire et d'une trame régulière, ainsi que la construction modulaire ont donné au projet sa force et son caractère. Un processus de traitement commun est mené à bien par une élimination progressive de tout élément architectural inutile. Les ouvertures ne sont pas équipées de poignées mais simplement d'un ancrage pour bien engager ou pousser. Les portes sont fabriquées sur mesure et n'ont pas d’impostes. Les murs intérieurs en béton auto-protégé évitent l'utilisation de plinthes. Les réseaux encastrés dans les dalles éliminent le besoin de faux plafond.

La masse thermique compacte améliore le refroidissement passif de la construction, réduit la consommation d'énergie par la climatisation et diminue le risque de surchauffe. La masse de béton absorbe l'excès de chaleur pendant la journée en fournissant une inertie thermique contre les fluctuations de température, ce qui élimine le besoin critique de refroidissement mécanique. La chaleur absorbée par le béton est évacuée pendant la nuit en ventilant le bâtiment avec de l'air naturel frais, car la nuit lorsque les mailles métalliques de la galerie extérieure sont verrouillées, les portes intérieures restent ouvertes. Ce phénomène est renforcé par la diffusion de l'eau de pluie précédemment stockée dans le patio.

Précédent
Précédent

Unités Familiales CD Muret

Suivant
Suivant

Centre Médical CD Muret