Groupe Scolaire D.Daubié

PROJECT:

PROGRAMME:

LOCALISATION:

CLIENT:

ANNEE:

STATUS:

EQUIPE MOE:

Groupe scolaire Daste, Daubié

4.350 m2 - 8.300.000,00 € HT

Toulouse - France

Mairie de Toulouse

2021

Concours 2021

Architectes BAAS (M) - SYNOPSYS (AA). BE TCE - BETEM/ BE ENVIRONEMENT - Paysage - WOODSTOCK/ Acoustique - EMACOUSTIC/ Economie et OPC - TCSO

La nouvelle école Daste Daubié, projetée sur un îlot central entouré par des immeubles de grande hauteur, rompt avec la verticalité du site et se prolonge à l’horizontal sous le feuillage du mail. Plus proche des piétons, l’école se veut chaleureuse et accueillante par sa volumétrie et échelle. L’école s’installe sur la totalité de la parcelle, borde les rues, construit les angles urbains et prolonge l’espace public vers deux vides dessinant les cours de récréation.   

Le bâtiment se compose de deux strates bien identifiables: un socle en brique rouge sobre et pérenne prolongeant le parvis sous le mail et répondant aux préconisations urbaines et, une strate haute traitée verticalement, composée d’un mur à ossature bois bardée d’une vêture en bois rouge rappelant les bâtiments ruraux. Le RDC abrite les fonctions communes et les salles d’activités ainsi que l’école maternelle du groupe 2/4. Le volume en bois de l’étage abrite la totalité des classes élémentaire et maternelle 4/6.  Au RDC, un grand porche donnant sur le mail, reçoit les enfants et les conduit directement aux trois cours extérieures communiquant visuellement entre elles.

Les Cours

Cours Maternelle 4-6 ans (R+1)

Cours elementaire (RDC)

Cours Maternelle 2-4 ans (RDC)

DIAGRAMME DE COMPOSITION

AXONOMETRIE ECLATEE

Les trois cours de l’école sont connectées entre elles: La conception de ces cours repose sur trois principes généraux:

• Être polyvalents et ouverts.

• L’architecture même comme support de jeu.

• Des structures simples et un aménagement paysager en harmonie avec l'architecture et l'environnement.

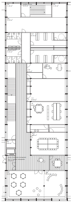
PLAN RDC

PLAN R+1

Au centre de la composition, au cœur du projet, le volume est surélevé. Il abrite le hall qui se prolonge par un préau concentrant la circulation verticale et des locaux collectifs. Au R+2, ce volume abritera les locaux des enseignants et la bibliothèque loin des bruits de la cour et du mail. Ce volume se reflète sur la façade de l’école, il constitue un front annonçant l’entrée de l’école et affiche son caractère institutionnel.   

Le projet assume son rôle d’institution public et tente par son architecture d’instaurer un certain ordre. La composition et la matérialité de la façade lui confèrent une forte personnalité dialoguant non seulement avec la promenade du mail, mais aussi avec les îlots avoisinants. L'ordre répétitif et ordonné de la façade, l'intégration d'un parvis qui se fond harmonieusement dans l'espace public, et l'utilisation de matériaux nobles tels que la brique et le bois procure un sentiment de fierté chez les usagers et résidents.

Le projet est conçu de manière à n'avoir que deux trames structurelles principales. Au RDC, la première trame des poteaux est noyée dans la façade sur rues alors que la seconde est intégrée dans les façades sur cours. Ce principe assure une flexibilité maximale aux espaces du RDC rendant leur mutation possible. Aux étages supérieurs, la structure et ossature en bois allègent le poids du bâtiment ; la trame régulière et les portées optimisées permettent de généraliser la flexibilité avec laquelle le bâtiment est conçu et facilitent l’intégration des éléments techniques. 

PLAN R+2

COUPE LONGITUDINALE

FACADE SUD

FACADE EST

COUPE DETAIL FACADE

1- Membrane d'étanchéité rigide

2- Panneau de protection rapportée pente 3%

3- Pare pluie

4- Plancher CLT isolé

5- Structure bois CLT

6- Garde corps métallique

7- Couvertine métallique

8- Planche de rive bois

9- Ossature mur bois

10- Contre ossature bardage

11- Bardage bois

12- Lame d'air

13- Pare pluie

14- Isolation

15- Panneaux OSB

16- Store extérieur

17- Menuiserie mixte double vitrage ouverture limitée

18- Appuis alu

19- Store intérieur sur menuiserie fixe

20- Menuiserie mixte double vitrage, oscillo-battant

21- Brique pleine

22- Lame d'air

23- Isolation façade

24- Attaches métalliques et rosasses

25- Mur support

26- Structure béton

27- Chappe et finition sol

28- Isolation rigide

29- Pare vapeur

30 - Dalle portée

Il est essentiel de construire une école qui soit confortable, énergétiquement durable, et surtout économiquement et socialement viable. L'utilisation de matériaux locaux et de techniques de construction traditionnelles et artisanales favorise et renforce l'économie locale. Opter pour la construction en bois et en brique permet de diminuer l'empreinte énergétique du projet tout en améliorant son impact environnemental sur toute sa durée de vie. Une architecture durable se caractérise également par sa flexibilité et sa modularité. Les espaces que nous concevons s'adaptent et évoluent : les salles de classe privilégient le mouvement. L'architecture interagit avec ses occupants plutôt que de les confiner à une utilisation prédéterminée. Les principes structuraux et l'organisation spatiale sont élaborés en vue d'atteindre ces objectifs. 

Précédent
Précédent

Groupe Scolaire G. Tillion

Suivant
Suivant

Crematorium Seysses